q
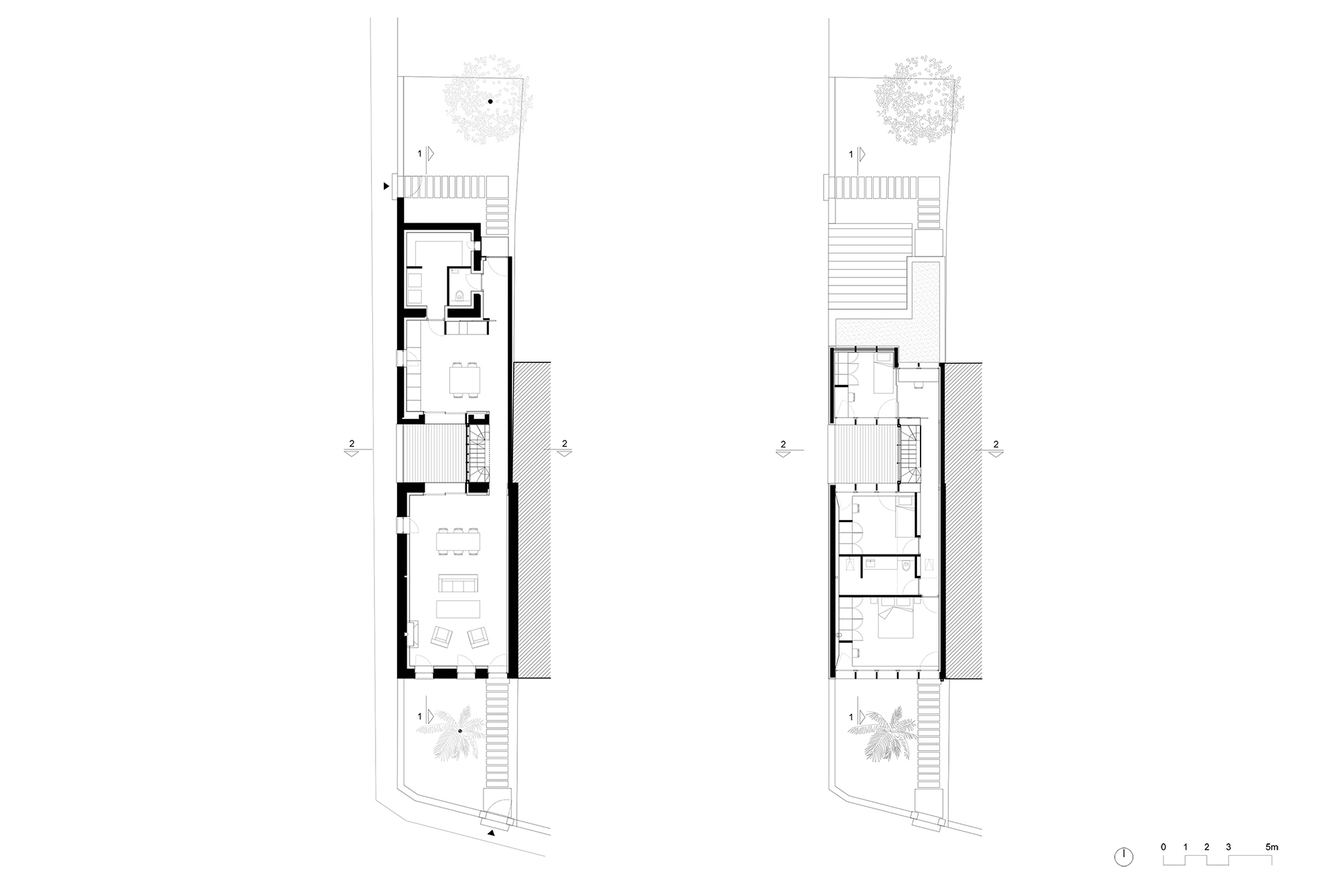
Maison du mois n°73, relever la tête
Cochez un dossier pour ajouter l'enregistrement à vos favoris. Décochez-le pour l'en enlever.
4
gerer mes paniers
Organisme : CAUE 31 - Haute-Garonne
Date de parution : 15/06/2017
Mot-clef : Maison du mois ; Toulouse ; SURÉLÉVATION ; RÉNOVATION DE BÂTIMENT ; ZINC ; MAISON INDIVIDUELLE ; ARCHITECTURE CONTEMPORAINE ; MAISON D'ARCHITECTE
...
Lieu prise de vue : Toulouse
Maître d'oeuvre : Atelier ATP
Univers : A
Cote : MDM73
Support : Numérique
Couleur : N et B, Coul.
Niveau d'autorisation : Public
Sujet : Maison du mois n°73