En poursuivant votre navigation sur ce site, vous acceptez l'utilisation d'un simple cookie d'identification. Aucune autre exploitation n'est faite de ce cookie. OK
9

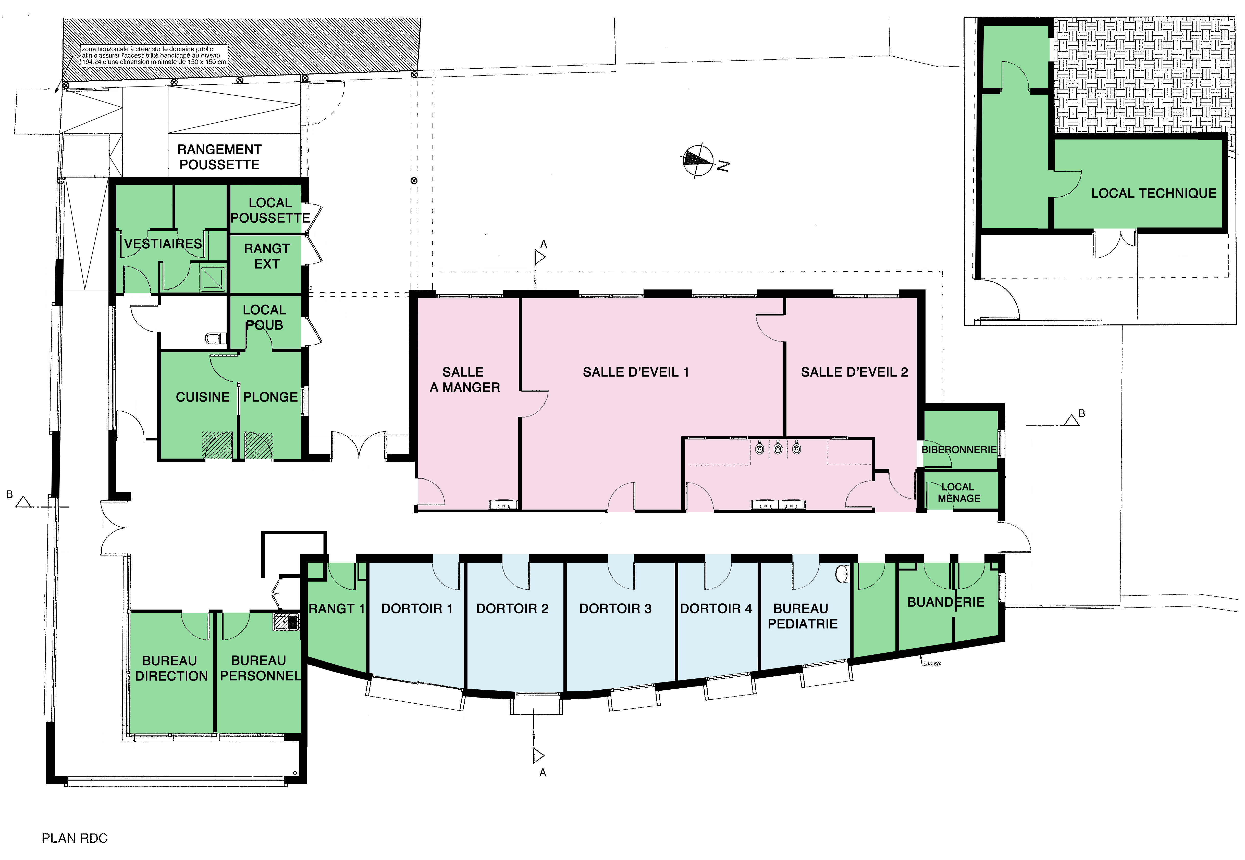
Haute-Garonne, Miremont, une crèche écrans ur le village

Sélection Signaler une erreur
Photographie

Les besoins en matière d'accueil de la petite enfance se sont accrus sur les cantons d'Auterive et Cintegabelle. La Communauté de Communes y a répondu par la création de structures multi-accueil dont l'une est réalisée sur la commune de Miremont.

Lieu prise de vue : Miremont

Date : 01/01/2009

Maître d'oeuvre : Archéa

Univers : A

Support : Numérique

Couleur : N et B, Coul.

Crédits photos : CAUE 31

Niveau d'autorisation : Public

Programme : Construction d'une crèche

Intervention du CAUE : Etude préalable en 2005, étude de faisabilité en 2006

Sujet : Crèche à mMremont

Nbre diapositive : 9

Nombre d'habitants : 2047

Surface : 405m2

Coût global : 686 592€

Equipe de maîtrise d'oeuvre : Archéa

Sélection Signaler une erreur

Dossiers